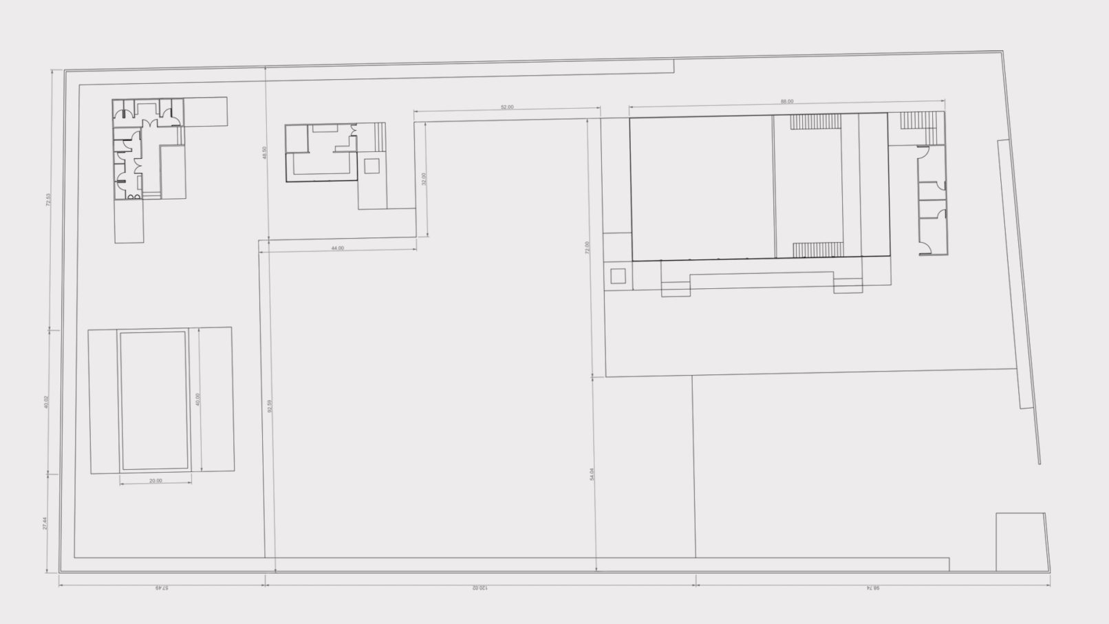
CTNR is design project proposed by Vaibhav, who has set the trend to organise parties with club like ambient in Gujarat. The idea is to develop an open plot with area of 38375.5 SFT, located near Hajira-Magdalla road in Surat. The program of the project is to design a banquet hall with discotheque for mulit-pupose use like corporate parties and other different sized ceremonial events. Program also includes design of swimming pool area with wooden deck followed by all the necessary services like toilet blocks and showers, There is also an open kitchen set up with open air cafeteria and the landscaping of the overall area.
/// YEAR
2017
/// LOCATION
Surat, India
/// DESIGN TEAM
Adnan Makda
/// STATUS
Un-built
